Малоэтажные здания

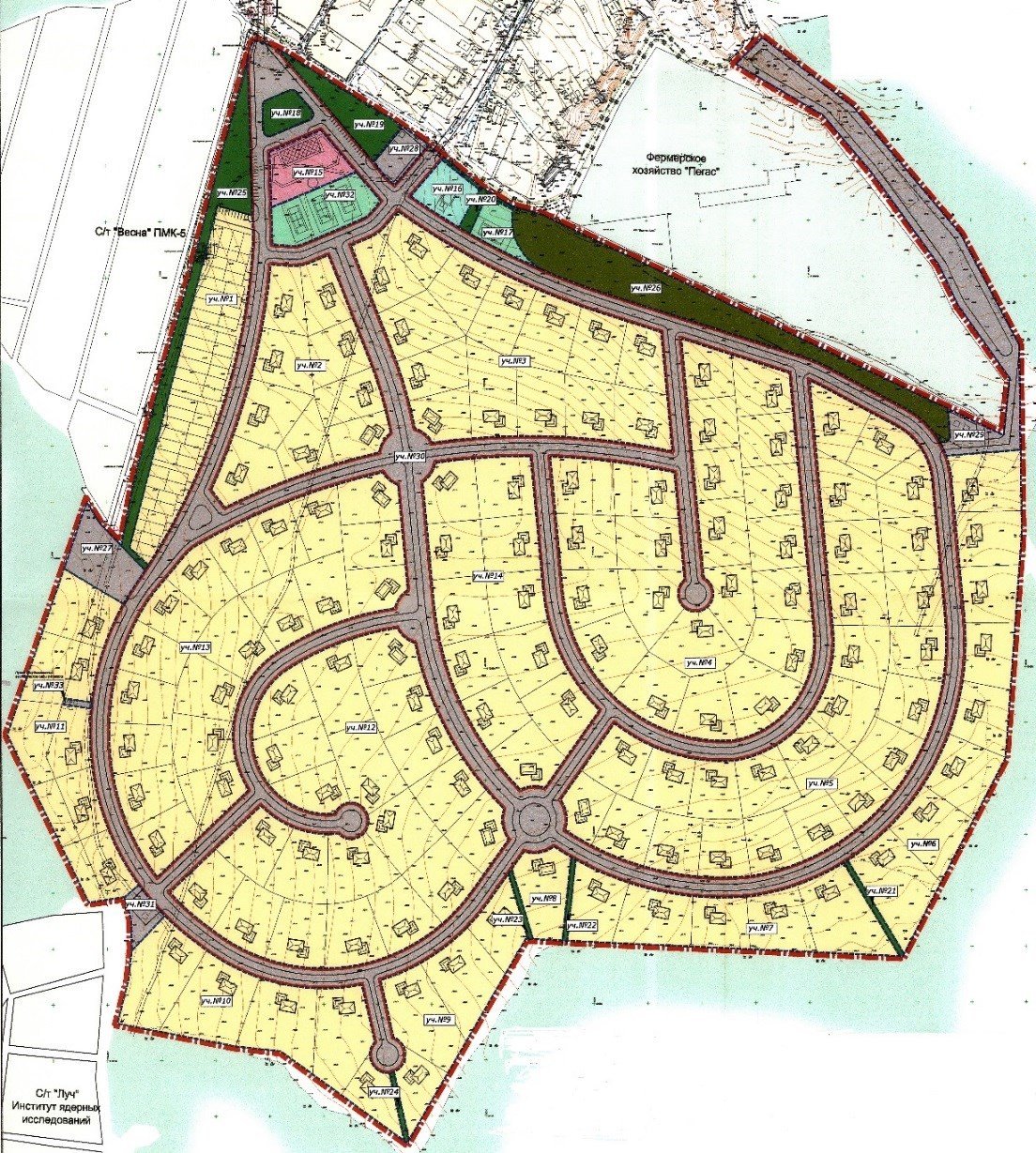
Объект: Новая Москва, Троицкий административный округ, Краснопохарское поселение, деревня Колотилово
Коттеджный поселок, жилая малоэтажная застройка Заказчик: ООО «Кварти.ру»
Вид работы: проектирование, корректировка технико-экономических показателей, подготовка обосновывающих материалов с учетом нормативных требований города Москвы и сложившейся градостроительной ситуации, получение Градостроительных планов земельных участков, получение разрешений на строительство сетей, объектов социальной инфраструктуры, таунхаусов и коттеджей.
Общая площадь территории: 58,4 га
Общая площадь коттеджей и таунхаусов: 63 500 кв.м.
Объект: Идвидуальный жилой дом
Центр управления кризисными ситуациями МЧС России по г.Северо-Западный филиал. Заказчик «Частный заказчик»
Вид работ :разработка «Рабочего проекта»
Остались вопросы?
Закажите обратный звонок!